
コスモ油津電器本店ビルD(1R)
令和7年9月完成 新築賃貸マンション
オートロック/エレベーター/宅配ボックス
11月1日より BTV光ルーム
賃料 | 205号室 49,000円 305号室 50,000円 405号室 51,000円 505号室 53,000円 |
---|---|
共益費 | 4,000円 |
駐車料 | 3,000円 |
敷金 | ― |
礼金 | ― |
保証委託料 | 月額総賃料の50%~ |
仲介手数料 | (賃料+駐車料)の1ヶ月分+消費税 |
家財保険 | 加入必須 |
築年月 | 令和7年9月 |
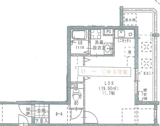
間取り | 1LDK |
所在地 | 日南市中央通1丁目 |
交通 | JR日南線「日南」駅 徒歩5分(300m) |
構造 | 鉄筋コンクリート造5階建 |
設備 | エアコン 1台 ウォシュレット/浴室乾燥暖房付き IHクッキングヒーター/シャンプードレッサー |
ポイント | 《BTV光ルーム》 ・インターネット無料 (100Mの戸別Wi-Fi接続) ・TVチャンネル鹿児島放送2局視聴可能 (KKB、KYT) |
備考 | 入居時にハウスクリーニング費用の前払いをお願い致します。 |












